Дом из газобетона Проект Д-Г-118

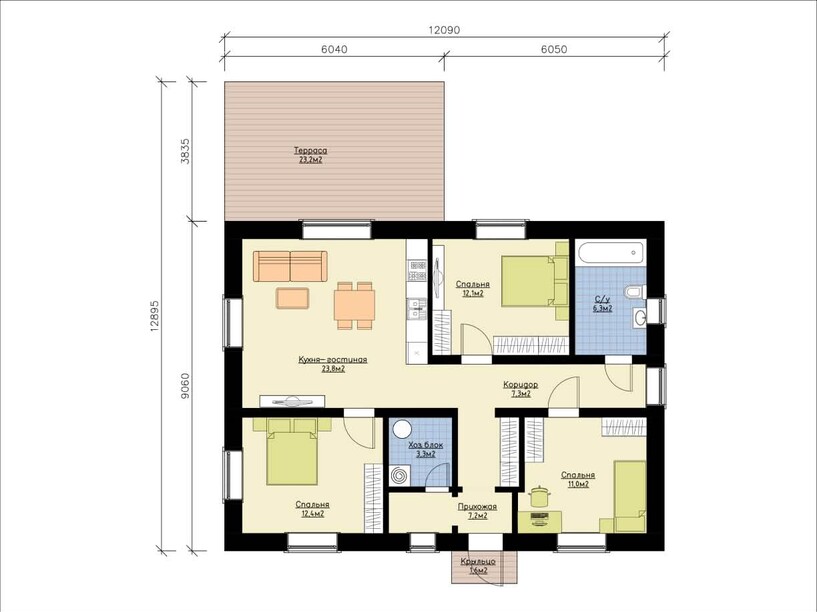
Размер дома 12х9 м
Общая площадь 108 м²
Кухня-гостиная 23,8 м²
Терраса 23,2 м²
Кол-во спален 3

Стоимость дома: 4 900 000 руб.

Итого: 4 900 000 руб.
Цена указана для строительства на территории в радиусе 10 км от Великого Новгорода

Гарантия:

  • На строительство домов - 5 лет.
  • На инженерные коммуникации - 1 год.
Что входит в стоимость
Мы строим дома для постоянного проживания. Не играем с комплектацией и не экономим на качестве или количестве материалов. 90% заказов — это ваши рекомендации, и мы этим дорожим.
01 Подготовка к строительству
Рабочая документация
Подготовка рабочей документации и чертежи внутренней планировки дома с учетом предпочтений заказчика
Оценка стройплощадки
Выезд на объект для оценки состояния земельного участка
Разрешение на строительство
Подготовка уведомления о начале строительства
02 Фундамент
В стоимость не входит. Рассчитывается отдельно. По желанию можно выбрать любой из раздела фундаменты (внизу страницы)
03 Стены
  • Газобетонные блоки толщиной 375 мм, марка плотности D400
  • Используем кладочный клей.
  • Армирование кладки каждый третий ряд арматурой диаметр 8 мм
  • Оформление оконных и дверных проемов. Перемычки над окном -металлический уголок 100х100мм.
  • Устройство вентиляционных каналов
  • Для равномерного распределения нагрузки на конструкцию стен пояс армирующий (монолитный). Бетон М250, арматура диаметр 10 мм А 3 в 4 ряда.
04 Перегородки
  • Для устройства несущих перегородок используем газобетонные блоки толщиной 250 мм, марка плотности D400.
  • Для устройства не несущих перегородок используем газобетонные блоки толщиной 100 мм, марка плотности D400.
  • Армирование кладки каждый третий ряд арматурой диаметр 8 мм
  • Перегородки из гипсокартонных листов на 2 этаже (в проектах где отсутствует возможность поставить перегородки из газобетона) не монтируются. Они монтируются при отделке
05 Межэтажное перекрытие
Межэтажное перекрытие -железобетонные плиты, толщиной 220 мм. Торцы плит утепляем пеноплэксом 50мм. Кладка стен второго этажа выполняется по перекрытиям следующим образом: первый ряд блоков выкладывается на раствор, следующие ряды - на клей.
06 Перекрытие чердачное
В проектах, в которых не предусмотрен второй этаж или мансарда, перекрытия монтируются по деревянным балкам с шагом 0,6м Обрешетка из доски камерной сушки размером 20х70мм Утеплитель Rockwool Лайт Баттс Скандик толщиной 200мм.
07 Кровля
Стропильная система
Стропила из доски камерной сушки размером 45х190мм с шагом 0.6м. Обрешетка из доски, толщиной 20-25мм с шагом 350мм.Вентиляционный зазор -брусок 40х50мм.
Покрытие
Металлочерепица, толщиной 0,5 мм.
Утеплитель
Утепление производится плитным утеплителем Rockwool Лайт Баттс Скандик толщиной 200мм.
08 Окна
Окна - двухкамерные стеклопакеты. В стоимость входит окна размером 1200х1400мм, цвет белый
09 Двери
Входная дверь- металлическая.
10 Высота
Первый этаж
2,6м
Второй этаж (при наличии)
2,6м
Мансарда (при наличии)
2,5м
Дополнительные работы
Электроснабжение 380 000 руб.
  • Ввод в дом от щитка (не более 20м). Монтаж электропроводки с подключением щита распределительного, автоматов. Разводка по комнатам – в каждой комнате установлена 2 розетки, выключатель, лампочка
  • Заземление
Разводка воды 150 000 руб.
  • Работы по установке датчика давления, датчика сухого хода, гидробака, магистрального фильтра грубой очистки. Разводка труб водоснабжения в санузле и на кухне. Работы по установке унитаза, раковины, ванны и бойлера. Санфаянс и бойлер приобретаются заказчиком отдельно.
  • Опрессовка системы для проверки герметичности.
  • Наладка, запуск
Водоснабжение 235 000 руб.
  • Глубина скважины до 30 метров.
  • В стоимость входит обвязка скважины: насос, обратный клапан, фитинги, углы.
Септик 225 000 руб.
  • Септик для глубокой биологической очистки сточных вод.
  • Рассчитана для семьи из 4 -5 человек.
Радиаторы 60 000 руб.
  • Монтаж секционных радиаторов. Количество секций рассчитывается в зависимости от площади помещений.
  • Монтаж электрического котла
  • Монтаж полипропиленовых труб, фитингов
  • Опрессовка
  • Наладка, запуск
Выбрать другой фундамент
Не требуется
Ленточный
Свайно-ростверковый
Монолитный (плита)
Как мы строим

Технология строительства дома

1 2 3 4
 

Конструкция кровли

1 2 3 4 5 6 7 8 9

1. Металлочерепица

2. Обрешетка

3. Контрбрусок (вентзазор)

4. Антиконденсатная пленка (ветровлагозащита)

5. Стропильная нога

6. Утеплитель

7. Пароизоляция

8. Контрбрусок (вентзазор)

9. Внутренняя отделка

 

Конструкция стены

1 2 3 4 5 6

1. Перемычка уголок

2. Газобетонные блоки наружные D400

3. Подоконный оцинкованный крашеный отлив

4. Монолитный пояс

5. Газобетонные блоки D400

6. Композитная арматура каждые три ряда кладки d8 мм

 

Конструкция межэтажного перекрытия

1 2 3 4 5

1. Газобетон D400

2. Пеноплэкс 50мм

3. Арматура d10 мм

4. Монолитный пояс

5. Плита перекрытия 200 мм

 

Конструкция чердачного перекрытия

1 2 3 4 5 6 7 8 9 10

1. Газобетон D400

2. Пеноплекс 50 мм

3. Гидроизоляция

4. Монолитный пояс

5. Арматура d10

6. Балка перекрытия

7. Мауэрлат

8. Rockwool Лайт Баттс Скандик 200 мм

9. Пароизоляция

10. Обрешетка

Наши объекты на карте

Есть проект дома? Смело присылайте!

Мы рассчитаем стоимость в течение дня и подскажем как сэкономить без потери качества

Нажимая на кнопку, вы принимаете политику конфиденциальности