Каркасный дом Проект Д-КА-105

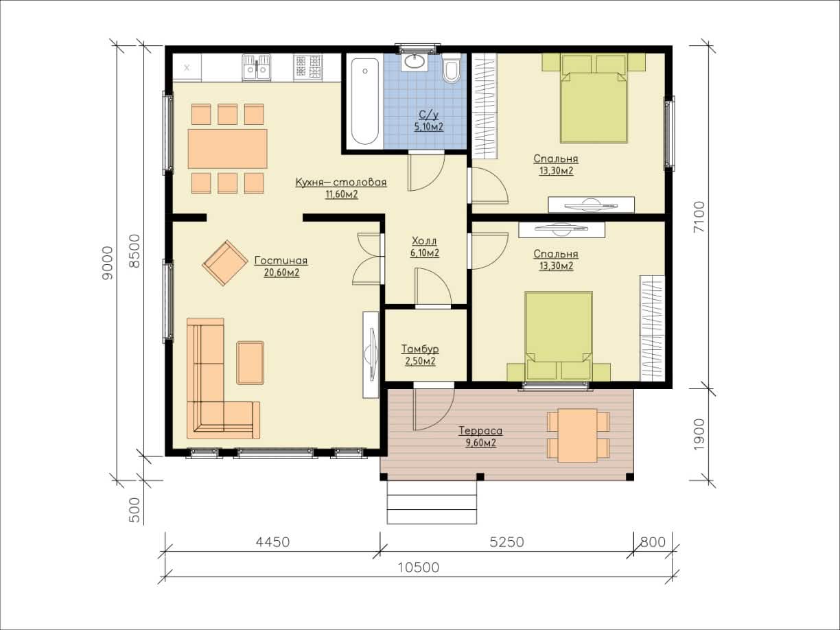
Размер дома 10,5х9 м
Общая площадь 82 м²
Кухня-гостиная 11,6 м²
Терраса 10 м²
Кол-во спален 2

Стоимость дома: 4 850 000 руб.

Итого: 4 850 000 руб.
Цена указана для строительства на территории в радиусе 10 км от Великого Новгорода

Гарантия:

  • На строительство домов - 5 лет.
  • На инженерные коммуникации - 1 год.
Что входит в стоимость
Мы строим дома для постоянного проживания. Не играем с комплектацией и не экономим на качестве или количестве материалов. 90% заказов — это ваши рекомендации, и мы этим дорожим.
01 Подготовка к строительству
Рабочая документация
Подготовка рабочей документации и чертежи внутренней планировки дома с учетом предпочтений заказчика
Оценка стройплощадки
Выезд на объект для оценки состояния земельного участка
Разрешение на строительство
Подготовка уведомления о начале строительства
02 Фундамент
Железобетонные сваи
По желанию можно выбрать любой из раздела фундаменты (внизу страницы)
Забивка установкой на гусеничном ходу железобетонных свай сечением 150х150 мм длиной 3000 мм. Оголовки свай 250х250 мм. Два слоя гидроизоляции между оголовками свай и обвязочным брусом.
03 Силовой каркас
Обвязка свай
Двойная обвязка основания. Первый венец брус 150х150мм. Обработан антисептиком. Вторая обвязка по периметру -сухая строганная доска камерной сушки на ребро 45х195мм.
Черновой пол
Доска 25х100мм
Половые лаги 1 этажа
Строганная доска камерной сушки 45х195мм через 590 мм
Каркас внешних стен
Стойки каркаса выполнены из сухой строганной доски камерной сушки 45х145мм. + брусок 40х50 мм. для перехлестного утепления. Шаг вертикальных стоек каркаса 590 мм. Силовой каркас - углы дома выполняются в "тёплый угол" (из 3-х скрепленных досок), в оконных проёмах, входных дверях - сдвоенные стойки. Раскосы каркаса выполняются из сухой строганной доски камерной сушки 45х145мм. Угловые стойки, пояса и верхняя обвязка каркаса выполняется из сухой строганной доски камерной сушки 45х145мм
Каркас перегородок
Строганная доска камерной сушки 45х95 мм с шагом 590 мм + брусок 20х70мм Врезные диагональные укосины-доска камерной сушки 45х95 мм.
Межэтажное перекрытие
Строганная доска камерной сушки 45х195мм через 590 мм.
04 Утепление
Наружные стены
Плитный базальтовый утеплитель Rockwool Лайт Баттс Скандик 200мм
Пол первого этажа
Плитный базальтовый утеплитель Rockwool Лайт Баттс Скандик 200мм
Межкомнатные перегородки
Плитный базальтовый утеплитель Rockwool Лайт Баттс Скандик 100мм
Межэтажные перекрытия
Плитный базальтовый утеплитель Rockwool Лайт Баттс Скандик 100мм
Потолок второго этажа
Плитный базальтовый утеплитель Rockwool Лайт Баттс Скандик 200мм
05 Кровля
Стропильная система
Стропила из доски камерной сушки 45х145 мм с шагом 590мм. Обрешетка из доски камерной сушки толщиной 25мм с шагом 350мм. Вентиляционный зазор - брусок 40х50мм.
Покрытие
Металлочерепица, толщиной 0,5 мм.
Свесы кровли
Имитация бруса камерной сушки. В случае отделки фасада сайдингом свесы выполняются из пластикового софита Grand Line.
06 Внешняя отделка
Фасад
Отделка фасада на выбор заказчика производится имитацией бруса или виниловым сайдингом. В случае отделки виниловым сайдингом каркас усилен плитой OSB-9мм. Вентиляционный зазор- брусок 20х70 мм и обрешетка для сайдинга брусок 20х70мм. В случае отделки имитацией бруса вентиляционный зазор - брусок 45х45 мм.
Окна
Окна – двухкамерный стеклопакет. В стоимость входит размер окон 1000х1200мм. Подоконники, отливы, цвет белый
Входная дверь
Дверь металлическая с терморазрывом
07 Внутренняя отделка
Стены
Отделка на выбор заказчика производится имитацией бруса или гипсокартоном. Обрешетка брусок 20х70мм.
Пол
ОСБ 12 мм. Обрешетка брусок 25х100мм
Потолок
Отделка на выбор заказчика имитация бруса или натяжной потолок, белого цвета
08 Лестница
Лестница (в двухэтажных домах). Балясины и заходные столбы заводские, точёные, камерной сушки. Перила клееные фигурные. Ступени камерной сушки. Тетива 60x300мм.
09 Вентиляция
Вытяжная вентиляция. Вентиляция сквозь стену- на кухне и санузле.
10 Высота
Первый этаж
2,5м
Второй этаж (при наличии)
2,5м
Мансарда (при наличии)
2,5м
Дополнительные работы
Электроснабжение 250 000 руб.
  • Ввод в дом от щитка (не более 20м). Монтаж электропроводки с подключением щита распределительного, автоматов. Разводка по комнатам – в каждой комнате установлена 2 розетки, выключатель, лампочка
  • Заземление
Разводка воды 150 000 руб.
  • Работы по установке датчика давления, датчика сухого хода, гидробака, магистрального фильтра грубой очистки. Разводка труб водоснабжения в санузле и на кухне. Работы по установке унитаза, раковины, ванны и бойлера. Санфаянс и бойлер приобретаются заказчиком отдельно.
  • Опрессовка системы для проверки герметичности.
  • Наладка, запуск
Водоснабжение 225 000 руб.
  • Глубина скважины до 30 метров.
  • В стоимость входит обвязка скважины: насос, обратный клапан, фитинги, углы.
Радиаторы 60 000 руб.
  • Монтаж секционных радиаторов. Количество секций рассчитывается в зависимости от площади помещений.
  • Монтаж электрического котла
  • Монтаж полипропиленовых труб, фитингов
  • Опрессовка
  • Наладка, запуск
Водосточная система 235 000 руб.
  • Монтаж горизонтальной части (водосбора), вертикальной части (водослива), вспомогательных элементов для соединения и крепления вертикальной и горизонтальной трасс водосточной системы.
Выбрать другой фундамент
Не требуется

Общая стоимость будет пересчитана

Ленточный
Свайно-ростверковый
Монолитный (плита)
Как мы строим

Технология строительства дома

1 2 3 4 5
 

Конструкция кровли

1 2 3 4 5 6 7 8 9

1. Металлочерепица

2. Обрешетка

3. Контрбрусок (вентзазор)

4. Антиконденсатная пленка (ветровлагозащита)

5. Стропильная нога

6. Утеплитель

7. Пароизоляция

8. Контрбрусок (вентзазор)

9. Внутренняя отделка

 

Конструкция стены

1 2 3 4 5 6 7 8 9

1. Отделка фасада

2. Контрбрусок (вентзазор)

3. Ветровлагозащита

4. Диагональная укосина

5. Стойка каркаса

6. Утеплитель

7. Пароизоляция

8. Контрбрусок (вентзазор)

9. Внутренняя отделка

 

Конструкция пола 1 этажа

1 2 3 4 5 6 7

1. Настил пола

2. Контрбрусок (вентзазор)

3. Пароизоляция

4. Утеплитель

5. Лага, межэтажное перекрытие

6. Ветровлагозащита

7. Черновой пол

 

Конструкция внутренних перегородок

1 2 3 4 5 6 7 8 9

1. Внутренняя отделка

2. Контрбрусок (вентзазор)

3. Пароизоляция

4. Диагональная укосина

5. Стойка каркаса

6. Утеплитель

7. Пароизоляция

8. Контрбрусок

9. Внутренняя отделка

 

Конструкция межэтажного перекрытия

1 2 3 4 5 6 7 8

1. Настил пола

2. Контрбрусок (вентзазор)

3. Пароизоляция

4. Утеплитель

5. Лага, межэтажное перекрытие

6. Пароизоляция

7. Контрбрусок (вентзазор)

8. Подшивка потолка 1 этажа

Наши объекты на карте

Есть проект дома? Смело присылайте!

Мы рассчитаем стоимость в течение дня и подскажем как сэкономить без потери качества

Нажимая на кнопку, вы принимаете политику конфиденциальности